Wohnen am Park | Leipzig

Planung
2005 - 2006
Standort
Leipzig
Planung
LPH 2 - LPH 4
Realisierung
2008 - 2009
Das Projekt "Wohnen am Park" der Leipziger Stadtbau AG fügt sich in die gewachsene Struktur des Musikviertels ein – ein Stadtraum, der durch klare Blockkanten, historische Gebäude und die besondere Nähe zum Clara-Zetkin-Parjk ("Clara-Park") geprägt ist. Unser städtebauliches Konzept stärkt diese Ordnung: Der Baukörper setzt die straßenräumliche Linie fort, definiert eine präzise Kante und bildet zugleich einen ruhigen Hintergrund für den angrenzenden Park. Damit entsteht ein Gebäude, das sich selbstverständlich in das Viertel einfügt und seine Qualitäten fortschreibt.
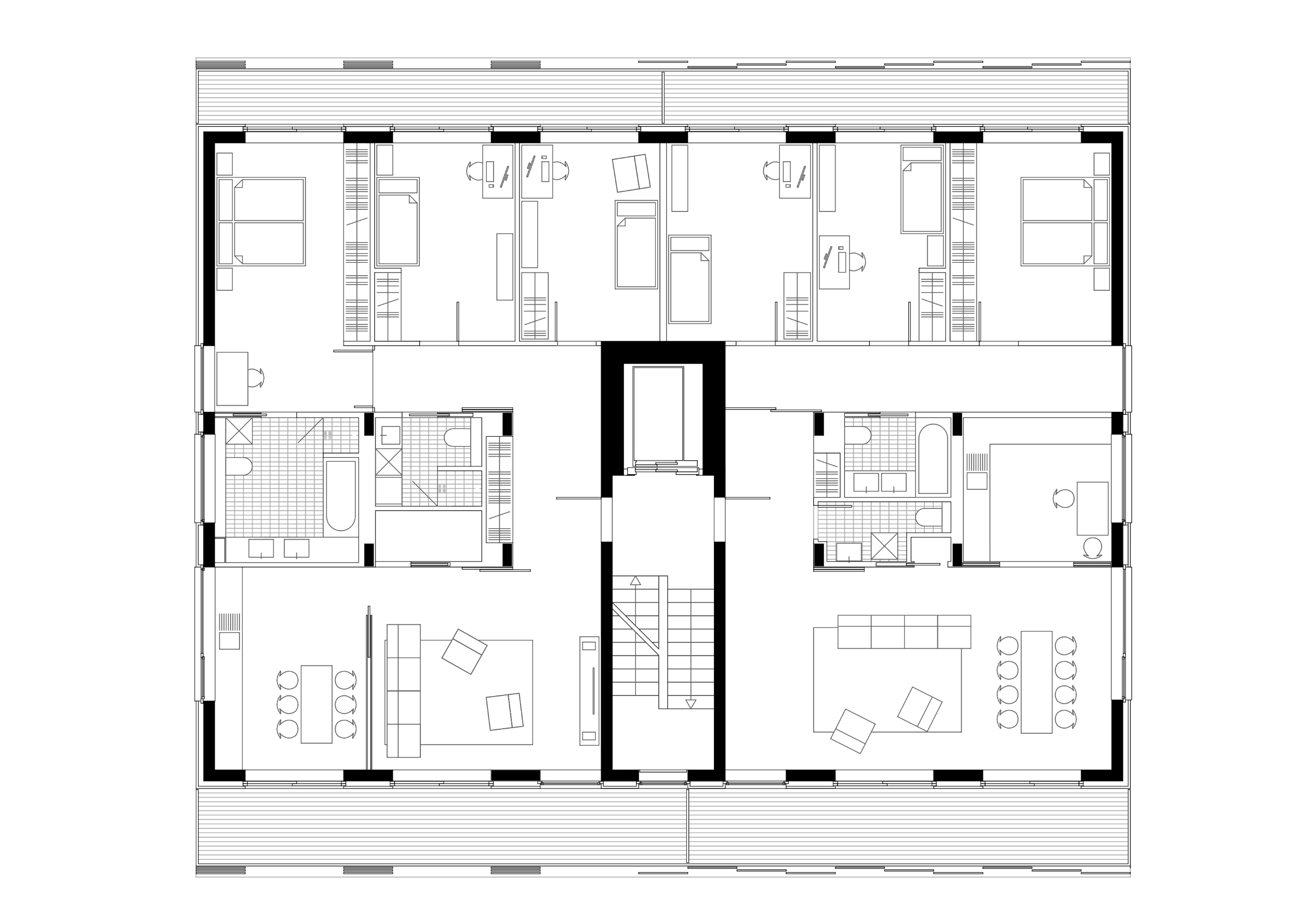
Architektonisch orientiert sich der Entwurf an der Maßstäblichkeit des Viertels. Die klar gegliederten Grundrisse nutzen die Tiefe der Parzelle sinnvoll aus und bieten vielfältige, gut belichtete Wohnsituationen. Die vorgelagerten, durchgängigen Balkone schaffen einen starken Bezug zum Außenraum und ermöglichen ein Wohnen, das zwischen urbaner Nähe und Privatheite vermittelt.





